- 32427 Minden
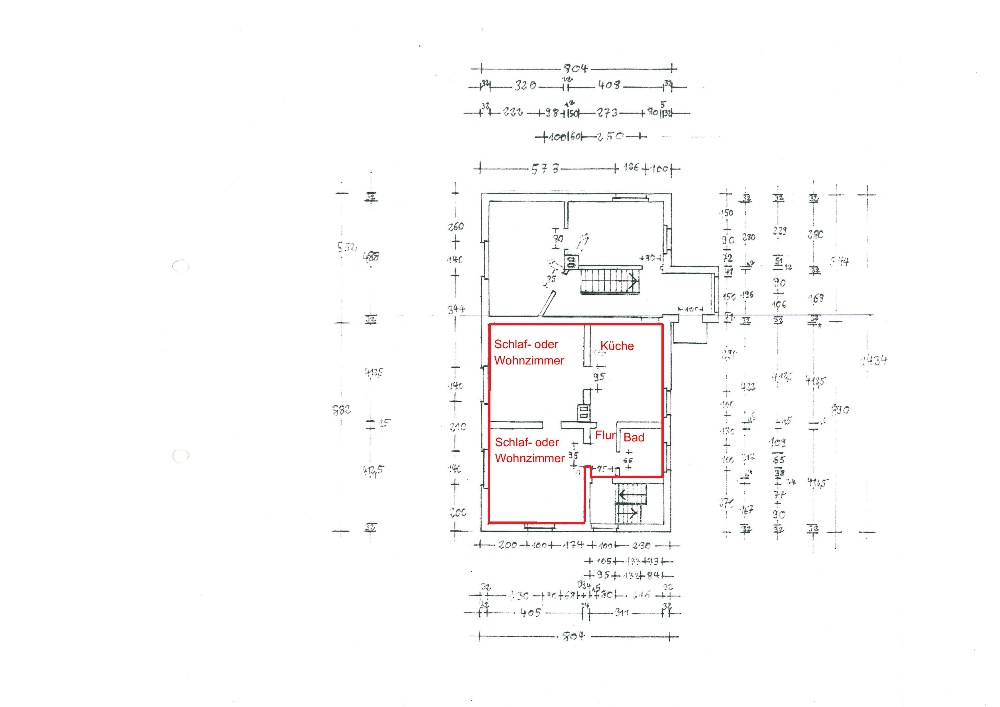
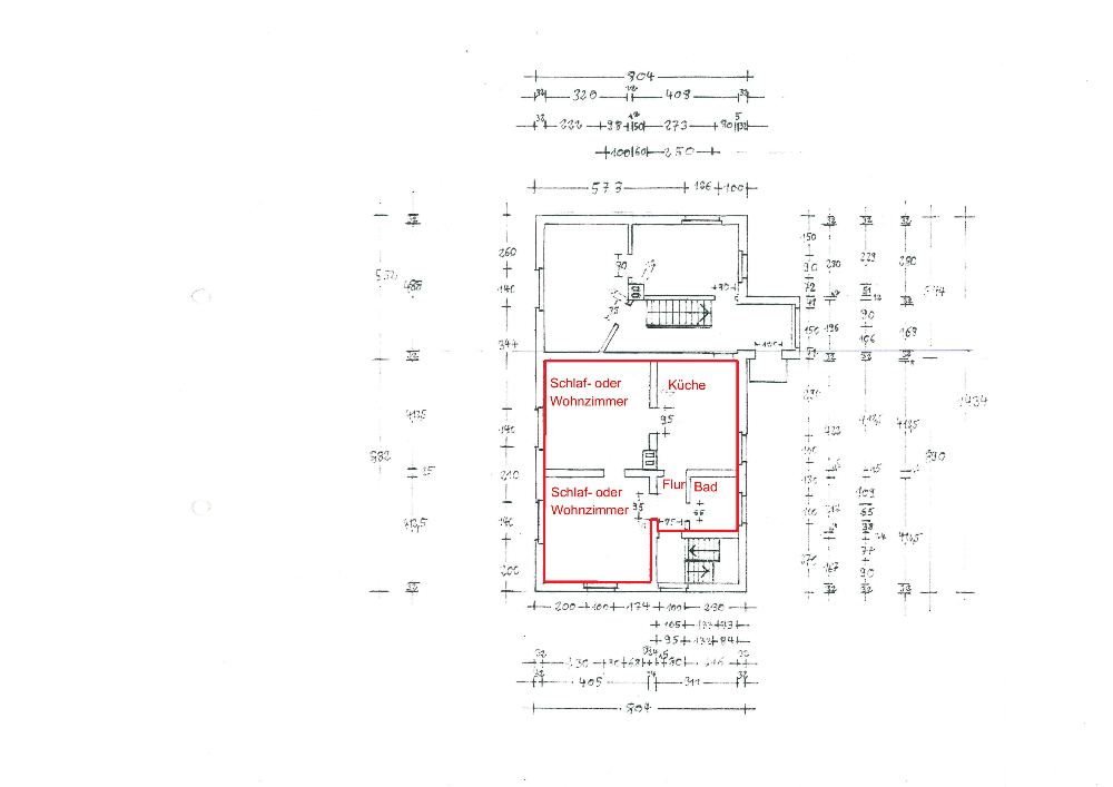
- Wohnfläche 55,0 m²
- Anzahl Zimmer 2
- Objektnummer 25_04_01_2
| Objekt / Online - Nr. | 25_04_01_2 |
| Vermarktung | miete_pacht |
| Objektart | objektart_zusatz und wohnung |
Ausstattung
| Boden | Fliesen, Laminat |
| Heizungsart | Zentral |
| Befeuerung | Gas |
| Gartennutzung |
Objektzustand / Energiepass
| Zustand | VOLL SANIERT |
| Letzte Modernisierung | 2016 |
Objekttitel
MINDEN - Innenstadt: Alte Liebe mit inneren Werten
Dreizeiler
2 Zimmer, Küche, Bad, Keller, Gartennutzung, ca. 55 m²
Einzelzähler für HZ, WW, KW, Strom, KM: 460 € renoviert, gute Ausstattung, shchönes Ambiente
Lage
Nur ca. 2 Km vom Marktplatz entfernt, in knapp 10 Min mit dem Rad in der Stadt. Nebenstraße, ruhig. Sehr gute Infrastruktur: Bäcker um die Ecke, Edeka - Markt, Penny -Markt, Friseure, Pizzaria und mehrere Restaurants, kleine Läden, Grundschule, usw. Sehr gute Parkmöglichkeiten.
Ausstatt_beschr
Mehrfamilienhaus aus den 30ger Jahren, vollständig saniert, auf modernstem Standard. Hauptgebäude mit drei Parteien, Nebengebäude mit separatem Eingang. Brennwertheizung für Warmwasserbereitung u. Heizung, Einzelzähler für Wasser, warm und kalt, Heizung, schönes Ambiente, modere Ausstattung. Fahrradgarage für alle Mieter, großer Garten. Sehr ruhig. Fenster relativ neu und gute Ausstattung.
Bäder hochwertig und sehr modern mit Dusche.
Trockenkeller vorhanden.
Objektbeschreibung
Telefon- + Fernsehanschluss über Kabel, alle Ecken haben Steckdosen, Bad mit Dusche, Platz für Waschmaschine im Bad, Einbauküche kann übernommen werden, hochwertige Fliesen, Laminat- und Fliesenfußböden, stilechte Türen,hochwertige Beschläge, Thermopane-Fenster usw. Wohnküche.
Sehr gut geschnittene Wohnung.
Sonstige_angaben
Die Einbauküche mit Kühlschrank, Gefrierunterschrank, Spülmaschine, Herd muss nicht übernommen werden. Übernahmepreis VB
Stellplätze können nach 17 h und am Wochenende kostenfrei genutzt werden.
Der Keller ist mietkostenfrei und Teil der Wohnung
Für Fahrräder steht eine Garage zur Verfügung
Reinigungsarbeiten für Keller und Treppenhaus sind vergeben, ebenso die Gartenarbeiten und in den Nebenkosten inkludiert
Keine Dokumente vorhanden



















