- 32457 Porta Westfalica
- Objektnummer 24_12_17
| Objekt / Online - Nr. | 24_12_17 |
| Vermarktung | miete_pacht |
| Objektart | gastgewerbe und objektart_zusatz |
Ausstattung
| Boden | Fliesen, Parkett |
| Heizungsart | Zentral |
| Befeuerung | Gas |
| Barrierefrei |
Objekttitel
Ihr neues Restaurant im Herzen von Porta Westfalica
Lage
Porta Westfalica, liegt malerisch zwischen dem Wiehengebirge und dem Weserbergland und zieht Einheimische sowie Touristen an. Die Weser bietet idyllische Landschaften und zahlreiche Freizeitmöglichkeiten wie Radfahren, Wandern oder Schifffahrten. Ein Highlight ist das Kaiser-Wilhelm-Denkmal auf dem Wittekindsberg, das mit seiner imposanten Erscheinung und einer spektakulären Aussicht beeindruckt.
Der Ortsteil Hausberge punktet mit einer guten Infrastruktur, Einkaufsmöglichkeiten und einer lebendigen Gemeinschaft. Die zentrale Lage des Restaurants an einer gut frequentierten Straße garantiert Sichtbarkeit und einfache Erreichbarkeit für Anwohner der Umgebung und Touristen.
Ausstatt_beschr
Der Gastraum ist mit hochwertigen, neuwertigen Tischen, Stühlen und einem Weinregal ausgestattet. Die Bar verfügt über Getränkekühlschränke, Kühlschubladen, eine professionelle Kaffeemaschine und eine Eiswürfelmaschine.
Die voll ausgestattete Küche umfasst einen Gasherd, eine Mikrowelle, Fritteuse, Tiefkühler, Pizzaofen, Pizzatisch mit Kühler sowie eine Teigknet- und Aufschnittmaschine. Eine Spülmaschine ergänzt die Ausstattung.
Zum Lokal gehört ein großzügiger Keller mit Trockenlager, Umkleideraum für Mitarbeiter und Getränkelager, das mit zwei großen Kühlschränken und einem Fasskühler ausgestattet ist.
Objektbeschreibung
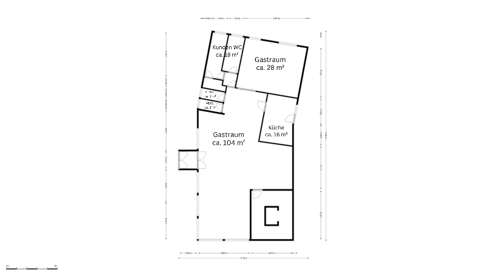
Das Restaurant wurde umfassend renoviert und bietet auf 174 m² Fläche, Platz für bis zu 75 Gäste. Es überzeugt durch ein zeitgemäßes Design, hochwertige Ausstattung und eine voll ausgestattete Küche, die allen baulichen Vorschriften und modernen Standards entspricht.
Der stilvoll gestaltete Gastraum mit hochwertigen Möbeln und Geräten eignet sich ideal für eine italienische Küche, erlaubt aber auch andere gastronomische Konzepte.
Das Inventar, bestehend aus Küchengeräten, Möblierung und einer ausgestatteten Theke, wird in Absprache mit dem Inhaber verkauft, sodass ein sofortiger Start möglich ist.
Keine Dokumente vorhanden












